一枚板を使用したリフォーム「コーポ葵」

1LDK 専有面積(壁芯)88.244m²
築年月:1969年9月
築年月:1969年9月

リビング


キッチン

寝室・居室

浴室

洗面化粧台

トイレ

担当者コメント
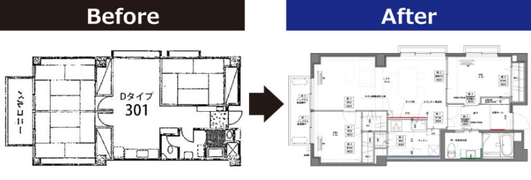
2021年フルリノベーション実施。「原木屋」の天然木の風合いを味わえる一枚板を「カウンター」と「洗面台」で使用しました。RCと建物としてのポテンシャルを最大限引き出すべく、2LDKからウォークインクローゼットを確保した1LDKへフルリニューアル。









2021年フルリノベーション実施。「原木屋」の天然木の風合いを味わえる一枚板を「カウンター」と「洗面台」で使用しました。RCと建物としてのポテンシャルを最大限引き出すべく、2LDKからウォークインクローゼットを確保した1LDKへフルリニューアル。